手動重型油桶倒料車
產品介紹
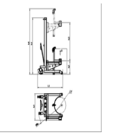
手動重型油桶倒料車C型鋼門架,經久不變型,適合夾重型鐵桶
高強度珩磨管精制油缸,經過調質處理,確保不漏油
超靜音尼龍輪,噪聲低,轉彎輕便靈活
手動重型油桶車減速機速比1:40,勻速動作.
夾緊部位電鍍處理,耐久性高.
International C steel mast, durable in original structure, design for steel drum lifting and rotating;
Quality cylinder made by high strength honing tube, with thermal refining, guarantees no leakage;
Ultra-silent nylon wheel, low noise, convenient and flexible in steering;
Hydraulic Heavy Duty Tilting Drum Lifter with 1:40 speed ratio gear reducer, move at constant speed;
Galvanized processing clamp with high durability.
產品參數
產品圖片
1.客戶收到的產品與訂貨產品型號不符。
2.客戶收到的產品不符合訂貨要求中的規定,造成不能正常使用。
4.在交貨的運輸過程中造成產品缺損,無法修復。
售后說明
1.整車保修一年
2.整車鋼結構焊接斷焊或斷裂一年內正常保修(超載導致變形,變形不保修)
3.24小時到48小時內到達或解決
4.提供操作視頻講解更換配件
5.終身提供配件
鄭重承諾
不好使用包退換!
采購:手動重型油桶倒料車
- *聯系人:
- *手機:
- 公司名稱:
- 郵箱:
- *采購意向:
-
*驗證碼:
跟此產品相關的產品 / Related Products

- 半電動搬運車
- 高性價比、經濟節能、綠色環保; 結構精致、設計精湛,外形簡約; 體積小巧,轉向輕便,輕松操作; 充分滿足大多數客戶的載重使用需求; 部件組裝模塊化,便于維護; 高強度車身和貨叉,堅固耐用,超長壽命設計

- 火車輪專用全電動搬運車
- 全電動火車輪搬運車,專用于火車輪拆裝移位的作業。 車體設計的專用保護夾具,在拆卸時良好地保護著火車輪不受擠壓,碰撞。 具有操作舒適、穩定性高、操作簡便、噪音低、無污染、故障率低等特點。 是火車站內高效,安全,環保型理想搬運設備。 步行式操作,無級變速行駛,大大提高工作效率。

- 8T重型電動搬運車
- 符合歐洲EN1757-1:2001,EN1727 標準; 大容量的牽引電池,充電方便快捷,電量持久; 可選配折疊式踏板,開閉操作方便; 臺灣極智泵站,體積小,可靠性高,工作平穩,節能,降噪,環保; 美國進口的科蒂斯(Curtis)交流電控系統反應靈敏,操控自如,可靠性高; 加裝安全防爆閥,液壓軟管一旦失效情況下貨物不會快速下落,確保操作人員人身安全。





